Casa indipendente in vendita

Pompiano, Piazza Sant'Andrea
€ 208.000
5 locali 5 locali
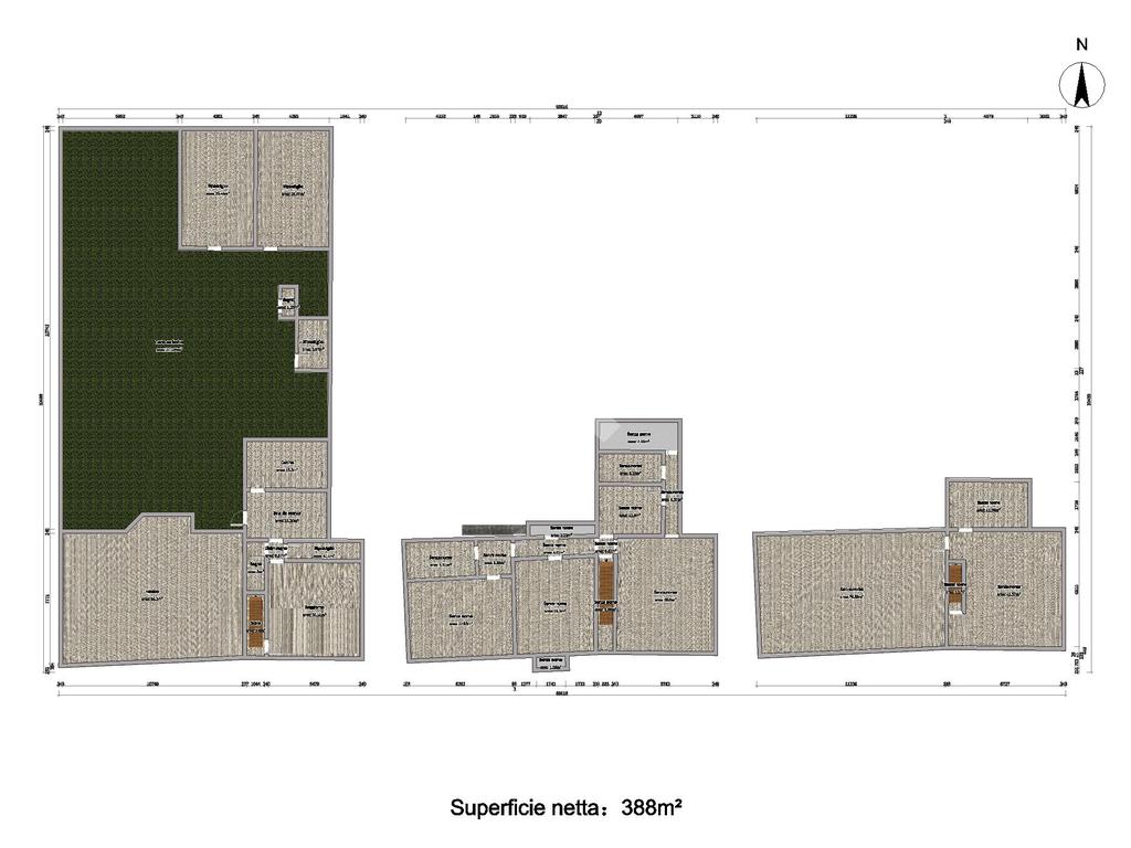
388 Mq 388 Mq
2 bagni 2 bagni

Casa indipendente in vendita

Pompiano, Piazza Sant'Andrea

Descrizione annuncio

COSA SAPERE SULLA CASA

Casa indipendente – Soggiorno – Cucina separata abitabile – Sala da pranzo – Ripostiglio - Camere da letto – Bagni – Mansarda.

Internamente: Cortile con accesso carraio – Giardino – Orto – Deposito.

Locale commerciale annesso.

PARTICOLARITA’ E DESCRIZIONE

La soluzione che proponiamo è posta in zona Pompiano, nel centro e quindi comoda ai principali servizi.

Trattasi di casa indipendente disposta su tre livelli; a piano terra si sviluppa la zona giorno composta da ampio soggiorno con camino, sala da pranzo separata dalla cucina abitabile. Un primo bagno con sanitari e vasca completa il piano.

Attraverso la scala interna si accede al piano primo formato da camere da letto di ampie metrature; sempre sullo stesso piano balconi fronte e retro, e bagno completo di sanitari e vasca.

Presente al piano secondo una mansarda abitabile.

Esternamente: accesso pedonale fronte strada, accesso carraio sul retro; sempre sul retro possiamo trovare un ampio cortile, il giardino, l’orto, locale deposito e un’ulteriore accesso tramite scala e terrazzina al piano primo.

Da ristrutturare. Tetto rifatto nel 1996.

Incluso nella vendita, locale commerciale di circa 70mq.

Mostra tutto

Nelle vicinanze

Ricariche auto elettriche Ricariche auto elettriche
Municipio di Corzano | EnelX
2,0 Km
Scuole Scuole
Scuole
2,5 Km
Ristoranti Ristoranti
Agriturismo Cascina Vittoria
2,0 Km
Mostra tutto

Caratteristiche

Rif.:
61113101
Piano:
3 di 3 (Piano basso)
Posti auto:
2
Balconi:
2
Terrazzi:
1
Camere da letto:
4
Mostra tutto
Prezzo Prezzo
€ 208.000
Rata mutuo Rata mutuo
€ 961 / mese
Spese annue Spese annue
€ 0
Proponi il tuo prezzoProponi il tuo prezzo
Immobile valutato con TecnoValore

Classe Energetica

G
G
G
G
G
G
G
G
G
EP globale non rinnovabile:
243.51 kW h/m² anno
EP globale rinnovabile:
63.41 kW h/m² anno
EP invernale del fabbricato:
EP estiva del fabbricato:
Anno di costruzione:
1960
Riscaldamento:
Autonomo
Tipo impianto:
Ad aria
Tipo alimentazione:
Metano

Ti interessa visionare l'immobile?

Fissa un appuntamento  Fissa un appuntamento

Richiedi informazioni

* Questi campi sono obbligatori

Calcola il tuo mutuo

Semplice e senza impegno
Anticipo

( % )
Mutuo

( % )

pochi semplici passi

inserisci i tuoi dati
Questionario completato
Grazie per aver richiesto un appuntamento senza impegno con un nostro Consulente del Credito e Assicurativo.

Hai inserito correttamente tutti i dati necessari e a breve riceverai una e-mail con un link da convalidare per inviare i tuoi dati.
Affiliato
Tecnolograto Srl
Via Martiri della Libertà, 48 25030 Lograto (BS)

Il nostro staff


  • Veronica Lo Giudice Comensoli
    Coordinatrice

  • Melissa Manfredi
    Collaboratrice

  • Andrea Riboldi
    Collaboratore

  • Nicolò Paoletti
    Affiliato
Via Martiri della Libertà, 48 25030 Lograto (BS)
Zona: Lograto
Mostra su mappa
Affiliato
Tecnolograto Srl
Via Martiri della Libertà, 48 25030 Lograto (BS)

2025 Tecnocasa Franchising S.p.A. - P. IVA 08365160152 - Via Monte Bianco 60/A 20089 Rozzano (MI). Ogni agenzia ha un proprio titolare ed è autonoma. Privacy policy | Policy utilizzo | Cookie policy